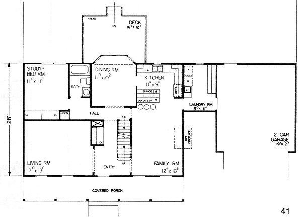
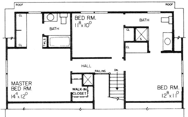
This plan features :
- Four Bedrooms
- Three baths
- Enhancements
- Two-Car Garage plus Laundry Room
- Front Porch
- Rear Deck
- Angle Bay Windows in Dining Room
- Full Porch with railing
- Fireplace in Family Room
- Foundation Options
- Full Basement
- Slab
- Crawl Space
Main Living Area – 1,915 sq. ft.



