Email: enquiries@americanhomes.com.au
Links
BuilderTREND Login
Home
About Us
Features
Value
Plans
Steps
Gallery
Completed Homes
Contact Us
Jefferson
Posted 4986 days ago
by
AmericanAdmin
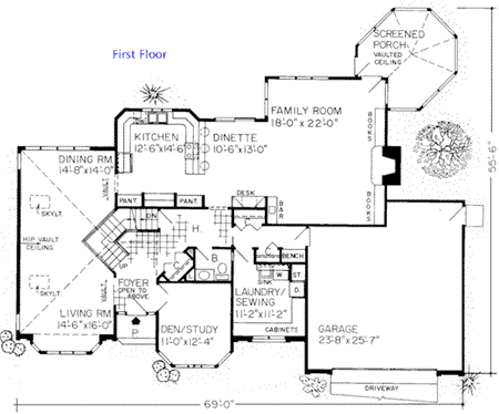
Front View
Living Area (sq. ft.)
Main: 1786
Upper: 1490
Total: 3276
Room Details
4 bedrooms
2½ full baths
2-car garage
Foundation Options
Plan width: 69′
Plan depth: 55′ 6″
w Full basement
First Floor
Second Floor