Front View

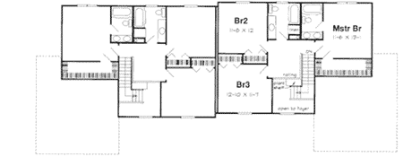
Living Area (sq. ft.) per unit

  • Main: 819
  • Upper: 825
  • Total: 1644

Room Details per unit

  • 3 bedrooms
  • 2½ full baths
  • 2-car garage

Foundation Options

  • Plan width: 87′
  • Plan depth: 38′ 10″
  • w Full basement

First Floor

Second Floor