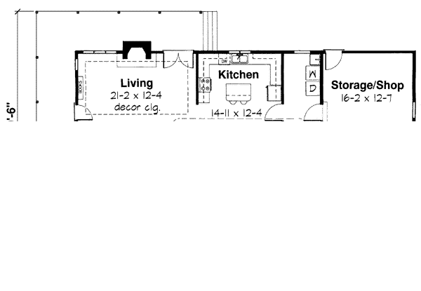
A delightful wrap-around porch encloses a roomy yet cozy interior plan. The kitchen boasts ample storage space with a convenient island and easy service to the dining room, set apart by pocket double doors. A fireplace and decorative vaulted ceilings makes the family atmosphere in the living room complete. There is also plenty of extra space in the garage for the craftsman in the family to work. Cathedral ceilings highlight the master suite, while the two bedrooms on the other side of the house, each with generous closet space, share a full bathroom.
This plan features:
- Three Bedrooms
- Two and one half bathrooms
- A wrap-around covered porch
- Decorative vaulted ceilings in the fireplaced Living Room
- A large Kitchen with central island/breakfast bar
- A sun-lit sitting area
First Floor – 1,034 sq. ft.
Second Floor – 944 sq. ft.
Basement – 944 sq. ft.
Garage & Storage- 684 sq. ft.



